GALLERY
リフォーム実例・お客様の声
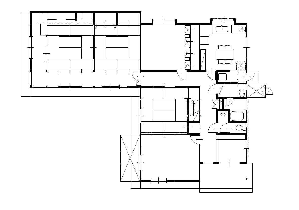
ワンフロアリノベーション 施工事例
-
施工後
AFTER
-
施工前
BEFORE
-
費 用
約1700万円
-
リフォーム
箇所1Fワンフロア
-
工 期
100日間
-
-
築年数
38年
-
家族構成
3名
-
種 別
戸建て
-
構 造
木造
-
親から引き継いだ住まいを、快適な平屋暮らし対応に
新築と同等の断熱性能にバージョンアップ。
使っていない部屋などを見直して、平屋暮らし対応にリノベーション
使っていない部屋などを見直して、平屋暮らし対応にリノベーション
-
玄関
-
和室洋室続き間→LDK
-
和室洋室続き間→LDK
-
和室洋室続き間→LDK
-
キッチン→寝室
-
お風呂
-
洗面
-
トイレ
PICKUP







