GALLERY
リフォーム実例・お客様の声
【インタビュー実例】憧れの平屋暮らしリフォーム
-
施工後
AFTER
-
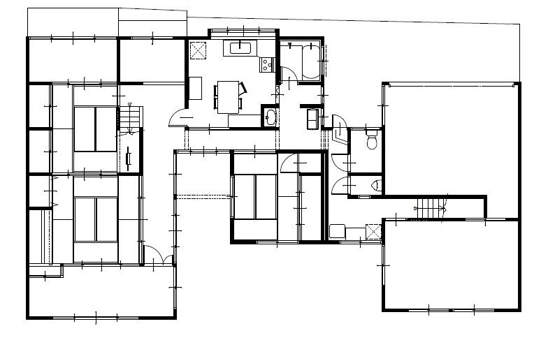
施工前
BEFORE
-
費 用
約2700万円
-
リフォーム
箇所LDK、和室、寝室、水廻り
-
工 期
120日間
-
-
築年数
50年
-
家族構成
2名
-
種 別
戸建て
-
構 造
木造
-



リフォームのきっかけは?
築50年になり老朽化が進んでいました。昔の家なので今の生活スタイルに合わない間取りの使いにくさ、断熱性能の低さによる寒さや結露など沢山の不満がありました。
そんな時に実家が「タカノ一条」で新築し遊びに行った時の快適さに感動!
「断熱性能で足元から暖かく長居したくなる」
「見た目がオシャレで居心地がいい」
私たちもこんな家に住みたいと強く思ったことがきっかけです。
会社選びはどのように行いましたか?
最初は沢山の住宅会社を見に行きました。その中で一番親身になってくれたのが「タカノ一条」の担当者さんです。リフォームも検討していることを伝えると「タカノリフォーム」の担当もご紹介いただき、新築とリフォームについて共に専門知識のある提案でご相談して下さり、安心してタカノリフォームに決めることが出来ました。
打ち合わせ内容や担当者の印象はいかがでしたか?
こまめに自宅やショールームで打ち合わせを行いました。営業の方も設計の方もこちらが気が付かないことを教えて下さりました。一つの物事でもメリットとデメリットを分かりやすく説明していただきプランも納得するまで提案して頂けました。
営業担当さん:こちらの無茶ぶりにもNOと言わずに対応して頂ける、親切で丁寧、対応力バツグンの方でした。
設計担当さん:女性の方でしたので話もしやすく、使い勝手やコーディネートなど楽しくお話できました。
工事監督さん:的確に指示をだしておられ安心して現場を任せらる人でした
住んでからの印象は?
今までの古い印象からガラッと変わり、明るく自分好みのデザインになりました。白色を基調にコーディネートしたことがお気に入りです!
こらからのセカンドライフは自分たちにとってとても貴重な時間になるので、この家で快適に暮らしたいと思います。
これからリフォームする人に伝えたいこと。
当初の計画よりも追加で発生する予算があることは覚悟が必要です。その場合でも相談すればコストを抑えるための提案もしてもらえるので、なんでも積極的にお話しすることが大切です。
また、人生の時間には限りがあるので少しでも早く計画を進めることが大事だと思います!
-
ワンフロアリノベーション
-
和室と縁側をLDKに
-
和室縁側をLDKに。お気に入りのソファー
-
お風呂も一新!
-
もとキッチンがユーティリティに
-
清潔感あるトイレ
PICKUP




